Cladire | Spatiu Industrial | de vanzare Judetul Sibiu

Scurta descriere
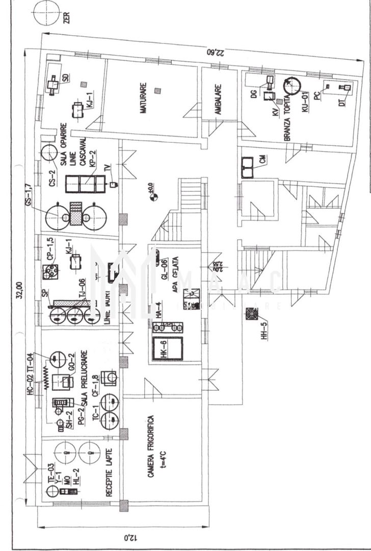
Agentia Imobiliara Maac va propune spre vanzare cladire pretabila pentru diverse activitati comericala compusa din D+P+E+M situata in Judetul Sibiu.
Imobilul dispune de o suprafață utilă de aproximativ 2000 mp, distribuită pe 4 niveluri, oferind un spațiu generos și flexibil, adaptabil unei game variate de activități: producție, depozitare, logistică, showroom sau spații comerciale.
Unul dintre principalele avantaje ale proprietății este posibilitatea de compartimentare și configurare în funcție de cerințele viitorului proprietar sau ale activității desfășurate.
Clădirea are un istoric solid, în trecut funcționând ca fabrică de producție lactate, fiind astfel potrivită inclusiv pentru activități din domeniul alimentar sau industrial.
Datorită structurii și suprafeței generoase, proprietatea reprezintă o oportunitate excelentă de investiție, oferind multiple posibilități de dezvoltare și adaptare în funcție de nevoile specifice ale afacerii.
Pentru mai multe detalii CP2996734 la telefon
Caracteristici
- Suprafata utila: 2000 mp
- Suprafata construita: 2500 mp
- Numar camere: 20
- Numar bucatarii: 3
- Numar bai: 4
- Numar etaj: Demisol
- An constructie: 2012
- Numar locuri de parcare: 6
- Suprafata teren: 1500 mp










