Spatiu productie sau depozitare 306 mp Zona Dacia
2035 €
+ 19% TVA
Categorie: Inchiriere

Data inregistrarii: 2022-10-10 04:07:39
Scurta descriere
APOSTU ESTATE va propune spre inchiriere un spatiu comercial pretabil pentru productie sau depozitare de 306 metri patrati utili in Zona Dacia.
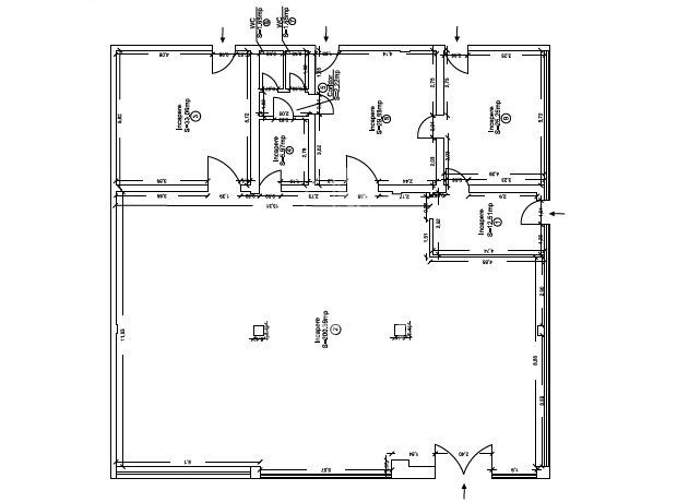
Spatiul se desfasoara pe o suprafata de aproximativ 306 mp la parter cu 5 puncte de acces.
Dispune de o incapere tip openspace de aproximativ 200 mp cu acces direct din exterior 3 incaperi potrivite pentru birou decomandate si cu acces separat din exterior pentru fiecare hol acces spatiu mic pentru depozitare si grup sanitar.
Se pot aduce modificari de compartimentare dupa necesitate.
Spatiul este pretabil pentru depozitare sau productie.
Va asteptam la o vizionare!
ID intern: 10946
Caracteristici
- Suprafata utila: 306 mp
- Suprafata construita: 345 mp
- Numar bucatarii: 1
- Numar bai: 2
- Numar dormitoare: 3
- Numar etaj: Parter
- An constructie: 1980
- Structura rezistenta: Beton


