Dezvoltator, garsoniera, et.1 - Iancului/ Metrou Comision 0% !

Scurta descriere
Va oferim spre vanzare o garsoniera situata intr-un bloc nou construit din zona Iancului/Sector 2.
Amplasamentul este de exceptie, imobilul fiind ideal pentru persoane si familii care doresc sa aiba in apropiere principalele puncte de interes, unde puteti avea acces facil catre: mijloace de transport in comun, statia de metrou Iancului, , scoli si licee de renume, gradinite, supermarketuri, farmacii. Imobilul dispune de lift si curte.
DESCRIERE:
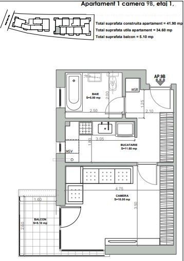
- Etaj 1/P+2E+M
- O camera, baie, bucatarie, hol, bacon
- Suprafata utila 34.6 mp
- Suprafata totala 41.9 mp
- Suprafata terasa 5.1 mp
Apartamentul este amenajat cu finisaje premium, incalzire in pardoseala, termopane. usa metalica si centrala proprie.
Imobilul dispune de parcare subterana si se poate achizitiona separat, pretul acestuia fiind de 20.000 euro + Tva.
ID: CP2075713
PRET: 133.000 Euro+Tva
TEL .: 0749.187.764
Caracteristici
- Suprafata utila: 34.6 mp
- Suprafata construita: 41.9 mp
- Numar camere: 1
- Numar bucatarii: 1
- Numar bai: 1
- Numar balcoane: 1
- Numar etaj: 1
- Confort: Lux
- An constructie: 2024
- Structura rezistenta: Beton
- Tip imobil: Bloc de apart.
- Stare imobil: Ultrafinisat









